Post #7 – Newton Elementary Upgrades
Eagle Vision II
There are three high priority concerns identified at the Newton Elementary (NE) Building: Reliability and functionality of the heating and air conditioning systems for the original (1951) section of the building, inadequate indoor recreational space for NE students, and inadequate loading and unloading areas both for buses and parent pickup.
- Heating and Air Conditioning – As mentioned in Post #2, the heating and air conditioning systems in the 1951 section of the NE building will be replaced with a central heating and air conditioning system utilizing available working cash and funds from a 1 yr short term bond separate from the major project.
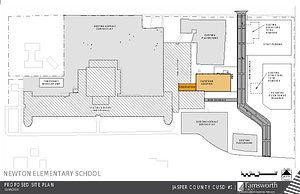
- Inadequate indoor recreation areas – Multiple studies have shown nationally that elementary student’s education is enhanced if they are given occasional breaks from the classroom and are provided the opportunity to engage in physical activity. The gymnasium is completely occupied with required Physical Education classes, so students typically go outside the building for their recess periods. During inclement weather outdoor recess is not an option, so during those times, students spend their recess periods in their classrooms or in the multi-purpose room playing board games. Unfortunately, the multi-purpose room is infrequently available since it is utilized primarily as a cafeteria. The proposed solution is to provide adequate indoor space for recess is to build a cafeteria room next to the kitchen and convert the multi-purpose room to an activities center.
- Student drop-off and pick-up. To address congestion and safety concerns during the drop-off and pick-up of students at NE, a new bus lane, adequate to handle all bus unloading and unloading will be built on the east side of the NE playground. The south side of the building will be dedicated to parent drop-off and pick-up.
During the prioritization process for the overall Facilities Renovation and Expansion Project, items 2 and 3 on the above list were deemed lower priority. At this point the project team does not know if these items will be included in the project.
Below is a conceptual layout of the additions to the NE building.


















